在起重机械项目的技术规格书上,常见要求“制动器的防护等级为IP65”。经过相关标准查阅,其实,这种说法可能不太规范,因为起重机用制动器没有防护等级这一概念(此观点也向某制动器厂家核实过),只有制动器的推动器有防护等级要求。

图1 电力液压推动器(素材源自焦作金虹、金箍、华伍等)
推动器作为制动器的驱动装置,是制动器重要组成部分,推动器也可用于其它部件上,如电动铁楔(图1)。本文基于JB/T 10603-2006《电力液压推动器》等解析电力液压推动器(以下简称推动器)的标准适用范围、型式及基本参数、技术要求、质量保证期、推动器报废情形等。
01
适用范围
适用于以三相交流电驱动,电动机、离心泵、液压缸组合为一体的电力液压推动器。

说明

“电力液压推动器”旧名称为“电力液压块式制动器推动器(JB/T 6406.3-1992)”,为了使其与国际通用名称相一致,JB/T 10603-2006替代JB/T 6406.3-1992时已修改为“电力液压推动器”。
02
型式及基本参数
推动器根据适用的环境分为普通型和防腐型两种。
推动器的参数主要包括额定推力(N)、额定行程S(mm),参数系列及连接尺寸见表1。因产品更新迭代及不同生产厂家,推动器参数及连接尺寸可能不一致,具体有需求时可咨询合作的供应商。

术语

额定行程(rated stroke),即推动器推杆从起始极限位置运动至终点极限位置的距离。

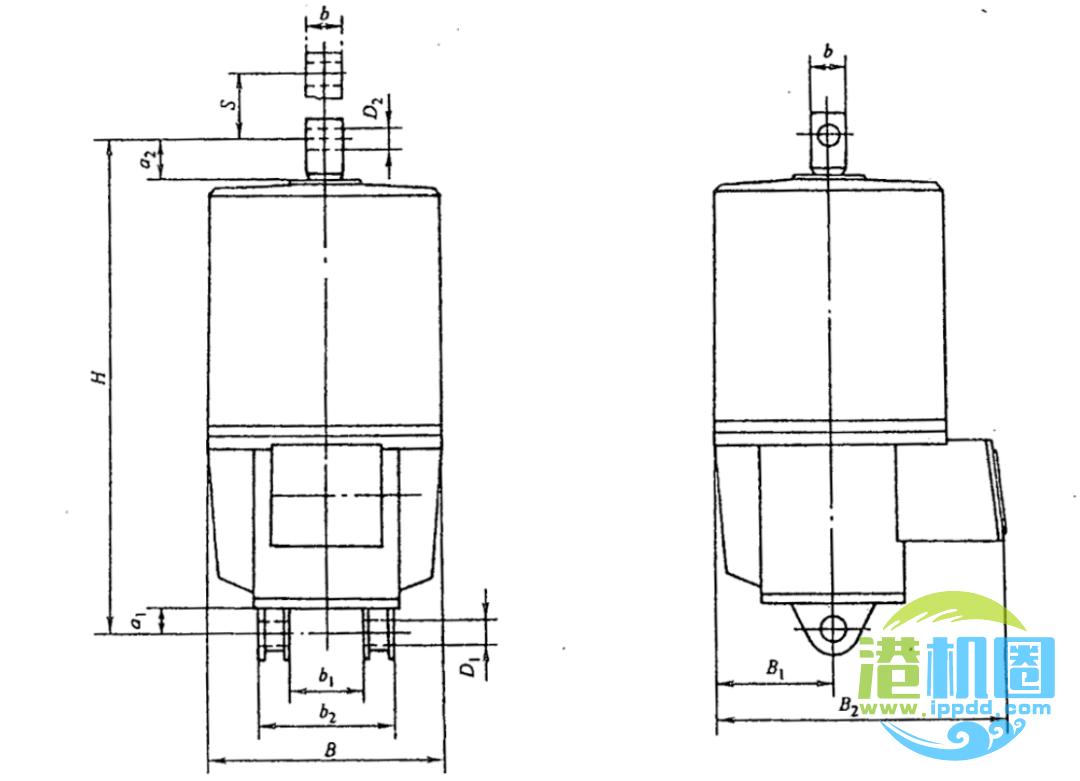
图2 推动器型式(源自JB/T 10603-2006)

表1 推动器参数及连接尺寸表(数据源自JB/T 10603-2006)
03
技术要求(部分)
推动器电动机电源为三相交流,额定电压为 220V、380V,电源频率为 50Hz,电压波动应不超过额定值的±10%。
推动器电动机的工作制为 S1 连续工作制和 S3 断续周期工作制,断续周期工作制时的负载持续率不大于 60%。
推动器宜采用电动机不浸油式结构。
推动器在额定电压、额定电源频率、60%负载持续率和额定载荷下操作时的动作性能应符合要求:
a) 最大操作频率应符合表 2 的规定;
b) 每个动作循环过程中推杆的运动不应有卡阻、爬行现象。
c)推动器以上规定的条件运行30万次时,不应出现电动机损坏、任何一种零件失效、外壳及任何密封处渗漏油、推杆运动卡阻和爬行等故障。(可靠性要求)

表2 推动器最大操作频率性能表(源自JB/T 10603-2006)
电动机外壳和接线盒防护等级:普通型产品不低于GB/T 4942.1规定的IP44,防腐型产品不低于GB/T 4942.1规定的IP65,并在接线盒内应有相应的防潮和防凝露措施。
普通型产品电动机绝缘等级不低于E级,防腐型产品电动机绝缘等级不低于F级。
电动机应在接线盒内设置接地螺钉并有明显的接地标记,接地螺钉的规格不小于M4。
04
质量保证期
制造厂应保证所供应的产品在客户妥善保管和合理安装、正确使用条件下,自使用之日起12个月内,但不超过自发货之日起算起18个月内能正常工作。(源自JB/T 10603-2006)
05
推动器报废情形
依据GB/T 6067.1-2010第4.2.6.7条,推动器出现下述情况时应更换报废:
a、磁铁线圈或电动机绕组烧损;
b、推动器推力达不到松闸要求或无推力。
JB/T 10603-2006标准中还规定了推动器环境使用条件、(全部)性能要求、表面涂装及防腐要求、试验方法、检验规则,及标志、包装、运输与贮存等要求,如有需要,请参研原文。
—延展参考标准—
GB/T 34114-2017 电动机用电磁制动器通用技术条件
JB/T 7020-2006 电力液压盘式制动器
JB/T 6406-2006 电力液压鼓式制动器
GB/T 33517-2017 电力液压鼓式制动器 技术条件
JB/T 14900-2024 起重机械用安全制动器
JB/T 14899-2024 起重机 隔爆型制动器
JB/T 12982-2016 电磁圆盘式制动器
JB/T 7685-2006 电磁鼓式制动器
GB/T 6067.1-2010《起重机械安全规程 第1部分:总则》
转载自微信公众号“Crane赵工”
